Never Ending Family Space $485,000 - $555,000

There's a reason why this area is so popular with buyers - the Tralee reserve and playground, proximity to great schooling and perfectly placed between two shopping centres, you really do have it all.

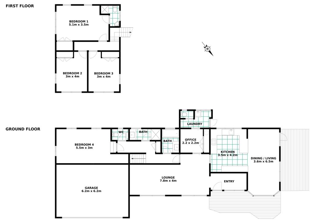
Modernised over the years while leaving value-adding potential, this commodious home has a wonderful upside. A split level design with four sizeable bedrooms and just about as many bathrooms, walk through office and two living areas, it's the perfect place to call home and entertain the extended crew. With what seems to be never-ending space, the flexible floorplan truly caters to any family arrangement.

Sharing a boundary with the tidy and secure Tralee reserve extends your families space immensely. Unlimited potential for any age, picnic lunches and "tag, you're it!" will be frequenting your new life. Plus with a second storey view overlooking the 2 hectare school grounds - the sky opens above to greet you with daily sunrise beauty.

Key Details:
Floor Area - 230m2
Land Area - 598m2
CV - $485,000
LV - $230,000
IV - $255,000
Rates - $3,069.58
TC2 Land
Built in the 1970s
Insured through Tower. Policy #HAC006. Sum Insured for $530,000
EQC CLM/2010/123703. All repairs completed as per SOW.
School Zones - Bishopdale School, Papanui High School, Emmanuel Christian
Bus routes within walking distance - 28, 107, 125
Legal Description - Lot 64 DP 34851

See below link for access to property documentation:
https://www.najibrealestate.co.nz/21030055

*The accuracy of this information cannot be guaranteed and all interested parties should seek independent advice.

Notice: Undefined variable: id in /home/najibrealestatec/public_html/admin/scripts-includes/classes/RealEstate/Listing.php on line 1311

Nathan Najib

m027 514 0775

@nathan@najibre.co.nz